Pāriet uz lapas saturu
Ropažu novada pašvaldība Ropažu novada pašvaldība Ropažu novada pašvaldība Ropažu novada pašvaldība
Izvēlne
Atpakaļ
  • Pašvaldība
    • Ukrainas iedzīvotāju atbalstam / Для підтримки громадян України 💛💙
    • Dome
      • Domes vadība
      • Deputāti
      • Domes struktūra
      • Domes sēdes
      • Komitejas
      • Komisijas
    • Administrācija
    • Izpilddirektora atskaites
    • Iestādes
      • Administratīvā komisija
      • Bāriņtiesa
      • Bibliotēkas
      • Būvvalde
      • Dzimtsarakstu nodaļa
      • Izglītības, jaunatnes lietu, kultūras un sporta departaments
      • Izglītības iestādes
      • Kultūras centri un nami
      • Pagastu pārvaldes
      • Pašvaldības policija
      • Radošie attīstības centri, Dienas un Multifunkcionālie centri
      • Sociālais dienests
      • Sporta centri, sporta zāles
      • Vēlēšanu komisija
    • Kapitālsabiedrības un pašvaldības aģentūras
    • Budžets
    • Normatīvie akti
      • Saistošie noteikumi
      • Saistošo noteikumu projekti
      • Nolikumi
      • Iekšējie noteikumi
    • Pašvaldību vēlēšanas 2025
    • Pašvaldības publiskais pārskats
    • Pašvaldības apbalvojumi
    • Sabiedrības līdzdalība
    • Projekti
    • Attīstība
      • Ilgtspējīgas attīstības stratēģija un Attīstības programma
      • Investīciju plāns
        • Investīciju plāna projekti
      • Nozaru attīstības plāni
      • Teritorijas plānojumi
      • Lokālplānojumi
      • Detālplānojumi
      • Tematiskie plānojumi
      • Ceļi un ielas
      • Energopārvaldība
      • Paziņojumi
      • Ietekmes uz vidi novērtējumi
      • Topogrāfisko plānu saskaņošana
      • Garkalnes pagasta sadalīšanas plāna izstrāde
      • Rail Baltica
      • Ilgtspējīga attīstība
      • Kam nepieciešams stratēģiskais novērtējums
    • Būvniecība
    • Cenu aptaujas
    • Iepirkumi
      • Sūdzību sniegšana par iepirkumiem
    • Īpašumi
    • Izsoles
      • Izsoļu arhīvs
    • Nodod atsavināšanai
    • Vakances
    • Trauksmes celšana
    • Korupcijas novēršana
    • Personas datu aizsardzība
  • Novads
    • Par novadu
    • Vizuālā stila grāmata, ģerboņi un logo lejupielādēšanai
    • Civilā aizsardzība, operatīvā rīcība
    • Ropažu novada mobilā lietotne
    • Izglītība
    • Kultūra
    • Sports
    • Tūrisms
      • Tūrisma aktualitātes
      • Aktīvā atpūta
      • Maršruti un kartes
      • Apskates objekti
      • Izzini un mācies
      • Kultūrvēsture un arhitektūra
      • Ēdināšana un naktsmītnes
      • Ražots novadā
    • Uzņēmējdarbība
    • Jaunatne
    • Kapsētas
    • Sabiedriskais transports
    • Sociālā joma
    • Biedrības un nodibinājumi
    • Veselība
      • Ārstu prakses Ropažu pagastā
      • Ārstu prakses Vangažu pilsētā
      • Ārstu prakses Stopiņu pagastā
      • Ārstu prakses Garkalnes pagastā
      • Citas veselības aprūpes saņemšanas vietas
      • Nacionālais veselīgo pašvaldību tīkls
    • Vide
    • Starptautiskā sadarbība
    • Elektroauto uzlādes stacijas
  • Pakalpojumi
    • Pakalpojumi
    • Pakalpojumu veidlapas
    • Priekšrocības un atbalsts Ropažu novadā deklarētajiem iedzīvotājiem
    • Par nekustamā īpašuma nodokli
      • Nekustamā īpašuma nodokļa nomaksa
      • Iesniegums nekustamā īpašuma nodokļa atvieglojumu saņemšanai
      • Nekustamā īpašuma nodokļa atvieglojumi
      • Nekustamā īpašuma nodokļa administratoru kontaktinformācija
      • Biežāk uzdotie jautājumi par nekustamā īpašuma nodokli
      • Informācija publicēšanai
    • Klientu apkalpošanas centri Ropažu novadā
    • Valsts un pašvaldības vienoto klientu apkalpošanas centru pakalpojumi
    • E-adrese – izveido un lieto
  • Aktualitātes
    • Notikumu kalendārs
    • Jaunumi
    • Pašvaldības aktualitātes
    • Informatīvais izdevums "Tēvzemīte"
    • Galerijas
  • Kontakti
    • Domes kontakti
    • Klientu apkalpošanas centri
    • Darbinieki
    • Norēķinu rekvizīti
    • Iestāžu un struktūrvienību kontakti
    • Kontakti medijiem
    • Pašvaldības policija
    • Sociālais dienests
    • Dzimtsarakstu nodaļa
  • Pašvaldība Ropažu novada pašvaldība izveidota 2021. gada 1. jūlijā pēc administratīvi teritoriālās reformas spēkā stāšanās. Ropažu novadā atrodas Stopiņu pagasts, kurā ir novada administratīvais centrs - Ulbroka, Ropažu pagasts, Garkalnes pagasts, Vangažu pilsēta.
    • Ukrainas iedzīvotāju atbalstam / Для підтримки громадян України 💛💙
    • Dome Domes vadība, deputāti, struktūra, komitejas, komisijas.
      • Domes vadība
      • Deputāti
      • Domes struktūra Ropažu novada pašvaldības domes struktūra.
      • Domes sēdes Domes sēžu darba kārtība, sēžu ieraksti un protokoli.
      • Komitejas
      • Komisijas Pašvaldības komisijas un to sastāvs.
    • Administrācija
    • Izpilddirektora atskaites
    • Iestādes Ropažu novada pašvaldības iestādes, kontakti, sniegtie pakalpojumi.
      • Administratīvā komisija
      • Bāriņtiesa Bāriņtiesas vispārīgie pienākumi ir noteikti Latvijas Republikas Civillikumā, Bāriņtiesu likumā, Bērnu tiesību aizsardzības likumā un citos normatīvajos aktos. Bāriņtiesas galvenā prioritāte – nodrošināt aizstāvību bērna vai aizgādnībā esošas personas personiskajās un mantiskajās interesēs un tiesībās.
      • Bibliotēkas Bibliotēkas Ropažu novadā.
      • Būvvalde Būvvalde sniedz pakalpojumus iedzīvotājiem būvniecības jautājumos Ropažu novadā.
      • Dzimtsarakstu nodaļa
      • Izglītības, jaunatnes lietu, kultūras un sporta departaments
      • Izglītības iestādes Izglītības iestādes Ropažu novadā.
      • Kultūras centri un nami Kultūras centri un kultūras nami Ropažu novadā.
      • Pagastu pārvaldes Pagastu pārvaldes Ropažu novadā.
      • Pašvaldības policija Ropažu novada pašvaldības policija veic sabiedriskās kārtības nodrošināšanu un citu tiesību aizsardzības uzdevumu izpildi Ropažu novada administratīvajā teritorijā diennakts režīmā.
      • Radošie attīstības centri, Dienas un Multifunkcionālie centri
      • Sociālais dienests Kontakti, sniegtie pakalpojumi.
      • Sporta centri, sporta zāles Sporta kompleksi, sporta centri un sporta zāles Ropažu novadā.
      • Vēlēšanu komisija
    • Kapitālsabiedrības un pašvaldības aģentūras Informācija par pašvaldības kapitālsabiedrībām.
    • Budžets Informācija par budžeta ienākumiem, plānotajiem izdevumiem un darba samaksas sadalījumu atbilstoši amatu grupām.
    • Normatīvie akti Ropažu novada pašvaldības darbību regulējošie normatīvie dokumenti.
      • Saistošie noteikumi Ropažu novada pašvaldības izdotie saistošie noteikumi.
      • Saistošo noteikumu projekti Ropažu novada pašvaldības saistošo noteikumu projekti.
      • Nolikumi Ropažu novada pašvaldības apstiprinātie iestāžu, struktūrvienību, komisiju un citi nolikumi.
      • Iekšējie noteikumi Ropažu novada pašvaldības apstiprinātie iekšējie noteikumi.
    • Pašvaldību vēlēšanas 2025
    • Pašvaldības publiskais pārskats Informatīvs dokuments ar mērķi sniegt vispusīgu informāciju par pašvaldības paveikto pilsētas ekonomiskās un sociālās attīstības nodrošināšanā.
    • Pašvaldības apbalvojumi
    • Sabiedrības līdzdalība
    • Projekti
    • Attīstība Investīciju iespējas pašvaldībā, aktuālie un plānotie remontdarbi, kā arī noderīgi dokumenti.
      • Ilgtspējīgas attīstības stratēģija un Attīstības programma Ropažu novada attīstības programmas 2022.-2028. gadam un Ropažu novada ilgtspējīgas attīstības stratēģijas 2022.-2038. gadam izstrādes gaita.
      • Investīciju plāns
        • Investīciju plāna projekti
      • Nozaru attīstības plāni
      • Teritorijas plānojumi
      • Lokālplānojumi
      • Detālplānojumi
      • Tematiskie plānojumi
      • Ceļi un ielas
      • Energopārvaldība
      • Paziņojumi
      • Ietekmes uz vidi novērtējumi
      • Topogrāfisko plānu saskaņošana
      • Garkalnes pagasta sadalīšanas plāna izstrāde
      • Rail Baltica
      • Ilgtspējīga attīstība
      • Kam nepieciešams stratēģiskais novērtējums
    • Būvniecība
    • Cenu aptaujas
    • Iepirkumi Informācija par plānotajiem, aktuālajiem un noslēgtajiem iepirkumiem, to dokumentācija, kā arī iepirkumu līgumi.
      • Sūdzību sniegšana par iepirkumiem
    • Īpašumi
    • Izsoles
      • Izsoļu arhīvs
    • Nodod atsavināšanai
    • Vakances Informācija par aktuālajām vakancēm pašvaldībā.
    • Trauksmes celšana Saskaņā ar Trauksmes celšanas likumu ikvienam ir tiesības celt trauksmi publiskajā un privātajā sektorā par darba vidē novērotu sabiedrības interešu apdraudējumu.
    • Korupcijas novēršana Informācija par to, kā pašvaldībā tiek nodrošināti korupcijas novēršanas pasākumi.
    • Personas datu aizsardzība Pašvaldības Personas datu aizsardzības politika un portāla privātuma politika.
  • Novads Informācija par novada vēsturi un attīstību, aktualitātēm un iespējām dažādās jomās.
    • Par novadu
    • Vizuālā stila grāmata, ģerboņi un logo lejupielādēšanai
    • Civilā aizsardzība, operatīvā rīcība
    • Ropažu novada mobilā lietotne
    • Izglītība Formālās, neformālās un interešu izglītības iespējas novadā.
    • Kultūra Notikumi, pasākumi un iespējas iesaistīties kultūras norisēs.
    • Sports Sporta kompleksi, sporta centri, sporta aktivitāšu iespējas Ropažu novadā.
    • Tūrisms Informācija par apskates vietām, naktsmītnēm un kafejnīcām, restorāniem.
      • Tūrisma aktualitātes
      • Aktīvā atpūta
      • Maršruti un kartes
      • Apskates objekti
      • Izzini un mācies
      • Kultūrvēsture un arhitektūra
      • Ēdināšana un naktsmītnes
      • Ražots novadā
    • Uzņēmējdarbība Uzņēmējdarbības vides raksturojums novadā, kā arī dažādi atbalsta mehānismi.
    • Jaunatne Projekti, aktīvās atpūtas un citas iespējas jauniešiem.
    • Kapsētas
    • Sabiedriskais transports Sabiedriskā transporta informācija Ropažu novadā.
    • Sociālā joma Sociālā atbalsta mehānismi novadā.
    • Biedrības un nodibinājumi
    • Veselība Veselības veicināšanas pasākumi, ārstu prakses un cita medicīniska rakstura informācija.
      • Ārstu prakses Ropažu pagastā Ģimenes ārstu prakses Ropažu pagastā - kontaktinformācija, darba laiki.
      • Ārstu prakses Vangažu pilsētā Ārstu prakses Vangažu pilsētā, kontaktinformācija, darba laiki.
      • Ārstu prakses Stopiņu pagastā Ģimenes ārstu un speciālistu pakalpojumi Stopiņu pagastā.
      • Ārstu prakses Garkalnes pagastā Ģimenes ārstu prakses, kontaktinformācija, pakalpojumi.
      • Citas veselības aprūpes saņemšanas vietas
      • Nacionālais veselīgo pašvaldību tīkls
    • Vide Informācija par vides jautājumiem.
    • Starptautiskā sadarbība
    • Elektroauto uzlādes stacijas
  • Pakalpojumi Ropažu novada pašvaldības un iestāžu pakalpojumus iedzīvotāji un uzņēmēji var saņemt elektroniski un klātienē, vēršoties Klientu apkalpošanas centros.
    • Pakalpojumi
    • Pakalpojumu veidlapas
    • Priekšrocības un atbalsts Ropažu novadā deklarētajiem iedzīvotājiem
    • Par nekustamā īpašuma nodokli Informācija par nekustamā īpašuma nodokļa piemērošanas kārtību, nomaksas iespējām, NĪN administratoru kontaktinformācija
      • Nekustamā īpašuma nodokļa nomaksa
      • Iesniegums nekustamā īpašuma nodokļa atvieglojumu saņemšanai
      • Nekustamā īpašuma nodokļa atvieglojumi
      • Nekustamā īpašuma nodokļa administratoru kontaktinformācija
      • Biežāk uzdotie jautājumi par nekustamā īpašuma nodokli
      • Informācija publicēšanai
    • Klientu apkalpošanas centri Ropažu novadā
    • Valsts un pašvaldības vienoto klientu apkalpošanas centru pakalpojumi Valsts iestāžu pakalpojumi, kurus var saņemt Ropažu novada Valsts un pašvaldības vienotajos klientu apkalpošanas centros
    • E-adrese – izveido un lieto
  • Aktualitātes Ziņas par iestādes aktualitātēm.
    • Notikumu kalendārs Iestādes plānotie aktuālie notikumi un pasākumi.
    • Jaunumi Aktuāla informācija, paziņojumi medijiem.
    • Pašvaldības aktualitātes
    • Informatīvais izdevums "Tēvzemīte" Pašvaldības ikmēneša izdevums - novada ziņas, pašvaldības avīze.
    • Galerijas Iestādes notikumu fotogrāfijas un video galerijas.
  • Kontakti
    • Domes kontakti
      +371 27885518 novada.dome [at] ropazi.lv Institūta iela 1a, Ulbroka, Stopiņu pagasts, Ropažu novads, LV-2130
      E-adrese
      E-adrese jeb oficiālā elektroniskā adrese ir personalizēta pastkastīte portālā Latvija.gov.lv, drošai saziņai ar iestādi.
      Lasīt vairāk
    • Klientu apkalpošanas centri Valsts un pašvaldības vienoto klientu apkalpošanas centru un klientu apkalpošanas centru kontaktinformācija pagastos. Lasīt vairāk
    • Darbinieki Lasīt vairāk
    • Norēķinu rekvizīti Lasīt vairāk
    • Iestāžu un struktūrvienību kontakti Lasīt vairāk
    • Kontakti medijiem Lasīt vairāk
    • Pašvaldības policija Lasīt vairāk
    • Sociālais dienests Lasīt vairāk
    • Dzimtsarakstu nodaļa Lasīt vairāk
Aizvērt
Meklēt
Piekļūstamība

Piekļūstams saturs

Viegli lasīt

Fonta izmērs

Kontrasts

Vizuālie rīki

Citi uzstādījumi
Aizvērt iestatījumus
Aizvērt
1
1
1
1
1

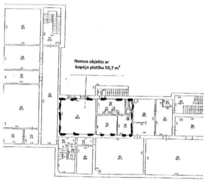
Ropažu novada pašvaldība izsola nomas tiesības uz telpām Upeslejās

Publicēts: 10.05.2023.

Dalīties ar šīs lapas saturu!

Izvēlies sociālo tīklu, kurā Tu vēlies dalīties ar šīs lapas saturu.
FacebookX / TwitterLinkedinThreads